CERNOBBIO: PREZZO AFFARE NO PROVVIGIONI

In vendita
Appartamento
Cernobbio (Piazza Santo Stefano)
250.000 €
Descrizione
***** LEGGERE BENE TUTTO L'ANNUNCIO *****

appartamento in MANSARDA
bene personale per cui NON VERRA' RICHIESTA PROVVIGIONE

VISTA E ZONA ECCEZIONALI

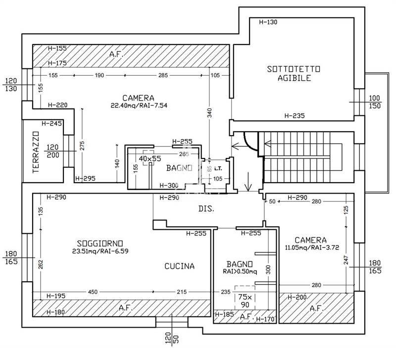
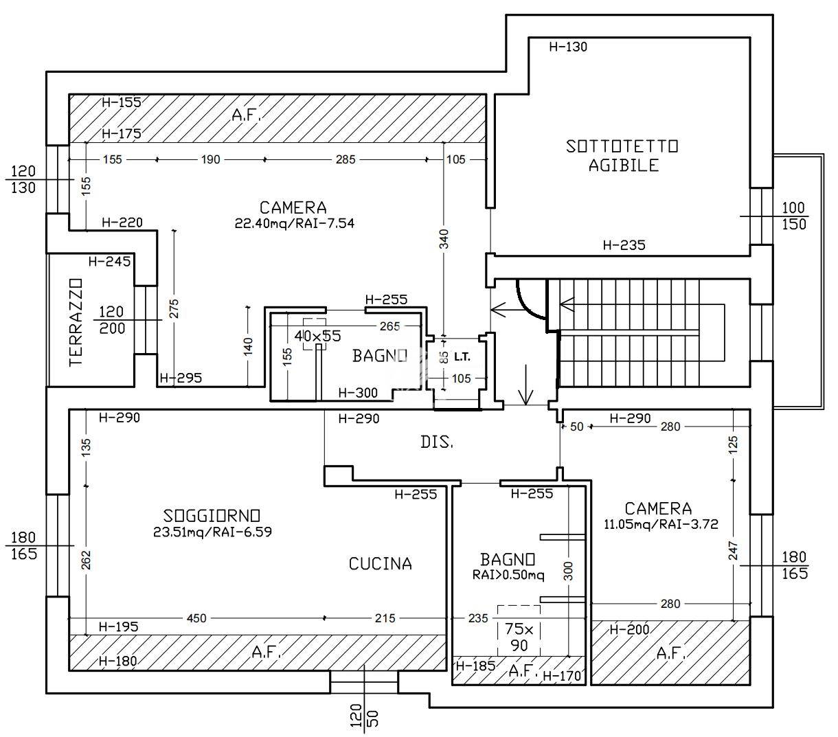
Nella divisione delle proprietà è assegnato alla mansarda una parte di giardino per creare i posti auto (oltre 45 mq) ed il proprio accesso indipendente.

***** Attualmente diviso in due unità andrà OBBLIGATORIAMENTE RIUNITO (VEDI PLANIMETRIA ALLEGATA) PRATICA EDILIZA ED ONERI A CARICO DEL VENDITORE.

Lavori da eseguire a carico del COMPRATORE ***********

L'appartamento è stato ristrutturato nel 2018/2019 con: Caldaia a condensazione per la zona giorno e split per aria condizionata, pompa di calore per acqua calda, split maggiorati e pellet per la zona notte. Due bagni dotati entrambi di doccia.
ELEMENTI DELLA RISTRUTURAZIONE:

DOPPI VETRI CON SERRAMENTO PVC PARI AL NUOVO
TAPPARELLE ELETTRICHE.
PRESENTE ISOLAMENTO NELLA CONTROSOFFITTATURA E PERIMETRALMENTE

Terrazzino coperto di circa 4 mq con VISTA LAGO eccezionale e piena su Cernobbio ((Villa Erba), Blevio, Como

Disposizione interna pensata formalmente con due aree:

ZONA NOTTE con bagno en-suite e locale cabina armadio, ZONA GIORNO con cucina a vista, secondo bagno con ripostiglio ed attacco lavatrice/asciugatrice, seconda camera.

PER LA DISPOSIZIONE INETERNA FARE RIFERIMENTO ALLA PLANIMETRIA
Nessuna spesa condominiale.

LA ZONA: Piazza Santo Stefano. Tranquilla, soleggiata e panoramica. Una delle più belle di Cernobbio ("Colorina"); un contesto di ville e case indipendenti.

DISTANZE: a meno di 10 minuti dalla dogana di Pizzamiglio per la SVIZZERA (ideale per frontalieri) ; ingresso autostrada a 10 minuti

SERVIZI
MEZZI PUBBBLICI: fermata autolinea ASF C28 (COMO -ROVENNA) a 50 metri.

**** SCUOLA PUBBLICA INNOVATIVA A 200 METRI: scuola pubblica su modello nord europeo (" la cd scuola SENZA ZAINO" e con compiti a casa limitati) ****

PANETTIERE, GASTRONOMIA, EDICOLA, PARRUCCHIERE a meno di 200 metri. Vari ristoranti e pizzerie

PISWCINA PUBBLICA direttamente sul lago con tariffa residenti e posti riservati

DISPONIBILITA' A VALUTARE PRATICHE CON MUTUO ACQUISTO E RISTRUTTURAZIONE E SERVIZIO DI ASSISTENZA MUTUO !!

L'immobile si presta ad una vasta clientela:

Chi desidera vivere nella tranquillità ed esclusività di Cernobbio, senza l caos del centro
Frontalieri che si possono recare al lavoro con un tragitto breve
Coppie in cerca di un appartamento con buoni spazi
Famiglie che cercano una dimensione più umana ed una scuola innovativa

Condizioni di pagamento da valutare; trattativa per definizione rapida e senza vincoli sull'offerta.

contatto diretto cellulare e whatsapp 348-2802220
Caratteristiche principali
Codice:
V000631
Città:
Cernobbio (Piazza Santo Stefano)
Categoria:
Appartamento
Locali:
3
Camere:
2
Bagni:
2
Mq:
130
Posti auto:
2
Balconi:
1
Mq Balcone:
3,5
Terrazzi:
1
mq Terrazzo:
3,8
Piano:
2
Anno:
1967
Anno ristrutturazione:
2019
Classe energetica:
In fase di valutazione
Stato Immobile:
Ristrutturato
Grado:
Signorile
Posizione:
Collina
Panorama:
Vista Lago
Orientamento:
Nord Ovest Sud Est
Lati Liberi:
4
Arredi:
Possibilità
Tipo Soggiorno:
Soggiorno
Tipo Cucina:
A Vista
Riscaldamento:
Autonomo
Tipo Riscaldam.:
Caldaia a Condensazione
Tipo Impianto:
Radiatori
Fonte Energetica:
Metano
Acqua Calda:
Autonoma
Raffrescamento:
Split
Infissi:
PVC Doppio Vetro
Serramenti:
Ottimo
Persiana:
Tapparella PVC
Pavim. Giorno:
Gres Porcellanato
Pavim. Notte:
Gres Porcellanato
Pavim. Cucina:
Gres Porcellanato
Pavim. Bagno:
Gres Porcellanato
Accesso Disabili:
No
Accesso interno disabili:
Non accessibile
Isolamento:
Presente
Isolamento termico:
Isolamento tetto/sottotetto
Isolamento acustico:
Isolamento pareti
Spessore cappotto (cm):
4
Impianto d’irrigazione:
No
VMC:
No
Accessori
Aria Condizionata
Canna Fumaria
Doppi Vetri
Ingresso Indipendente
Stufa a Pellet
Tapparelle Elettriche
Mappa
VIA PRIVATA COLORINA , 33 - Cernobbio (CO)
Distanze
Posizione
Centro700 m
Lago800 m
Parco pubblico600 m
Istruzione
Scuola materna300 m
Scuola elementare300 m
Scuola media600 m
Scuola superiore1,5 km
Università3 km
Mezzi di trasporto
Aeroporto25 km
Fermata metro-bus-tram50 m
Stazione di servizio1 km
Stazione dei treni2 km
Altri servizi
Banca800 m
Chiesa200 m
Farmacia800 m
Ospedale2,5 km
Supermercato800 m
Video
Richiedi informazioni
Invia
Cookie preference